Лучший грузовой аккумулятор для автомобиля МАЗ
Новинка среди грузовых аккумуляторов
Современные автомобили, как легковые, так и грузовые оснащаются все большим количеством потребителей электроэнергии, что в свою очередь требует установки на автомобиль более мощного генератора и аккумуляторов повышенной емкости.
Сегодня мы уделим внимание аккумуляторам для грузовых автомобилей, в частности аккумуляторам для грузовиков, производства Минского Автомобильного завода (МАЗ).
В грузовой автомобиль, как правило, устанавливают два аккумулятора одинаковой емкости. Долгое время основным аккумулятором для грузовиков МАЗ была батарея, емкостью 190 Ah. Несколько лет назад тенденция начала меняться и на МАЗы все чаще стали устанавливаться аккумуляторы емкостью 220 Ah. И в последующих годах, тренд на установку аккумуляторов повышенной емкости будет усиливаться. Это видно из тендерных закупок АКБ, которые объявил завод МАЗ на 2023 год. Аккумуляторов, емкостью 220 Ач, требуется в 10 раз больше, чем АКБ, емкостью 190 Ач.
На какие основные параметры нужно обратить внимание при выборе аккумулятора для грузового автомобиля МАЗ:
- Емкость
- Пусковой ток
- Размеры
- Тип полюсного вывода
- Наличие нижней планки на корпусе АКБ, для крепления к автомобилю
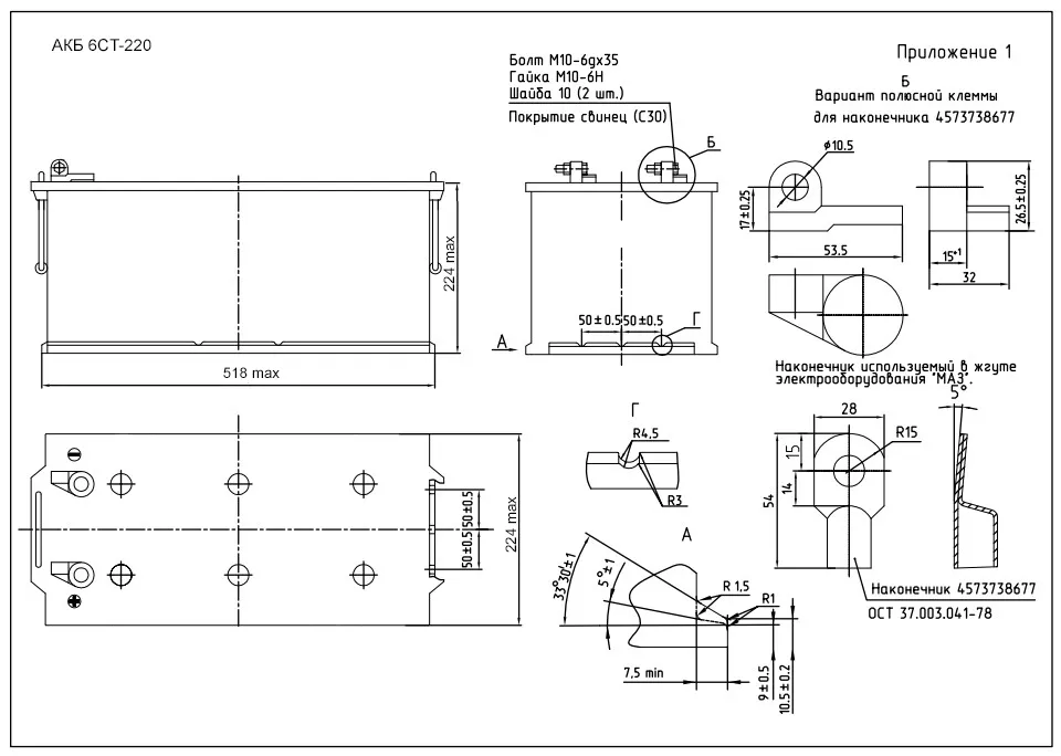
Ниже приведена схема с полными размерами аккумуляторной батареи, а также с размерами и типом полюсных выводов и размером крепежной планки.

Схема грузового аккумулятора GLADIATOR Energy 220
Компания РИМБАТ является официальным импортером аккумуляторов Рязанского аккумуляторного завода «Тангстоун», который долгие годы является поставщиком грузовых аккумуляторов на первую комплектацию КАМАЗ. Поэтому имеет богатый практический опыт производства надежных аккумуляторных батарей, которые соответствуют высоким требованиям производителя техники.
На заводе Тангстоун налажено производство грузовых аккумуляторов GLADIATOR, специально для автомобиля МАЗ нового поколения – GLADIATOR ENERGY, емкостью 220 Ah и пусковым током 1390 А.
Получить экспертную консультацию об этом и о любом другом аккумуляторе, узнать о наличии, стоимости и оформить заказ - вы можете в каталоге на сайте либо у вашего менеджера по телефону +375 29 664-44-03